| 価格 | 2,980万円 |
|---|---|
| 種目 | 新築一戸建住宅 |
| 所在地 | 浜松市中央区白羽町406-2 \中央区白羽町/浜松駅徒歩38分 平屋3LDK 白脇小・南部中 |
| 建物面積 | 76.18㎡ |
| 土地面積 | 200.7㎡ |
人気のエリアに平屋3LDK+Sプランが誕生!子育てにも優しいプランの平屋。階段がない生活は家事もはかどる効率のよい住まい方です。現地完成済みご案内可能です。ぜひご来場、お問合せください。
この物件の詳細について、お気軽にお問い合わせください
物件価格2,980万円
月々の支払い44,095円
※上記支払例の借入条件:金利0.8%、借入総額2980万円、借入期間50年
| 種目 | 新築一戸建住宅 | ||
|---|---|---|---|
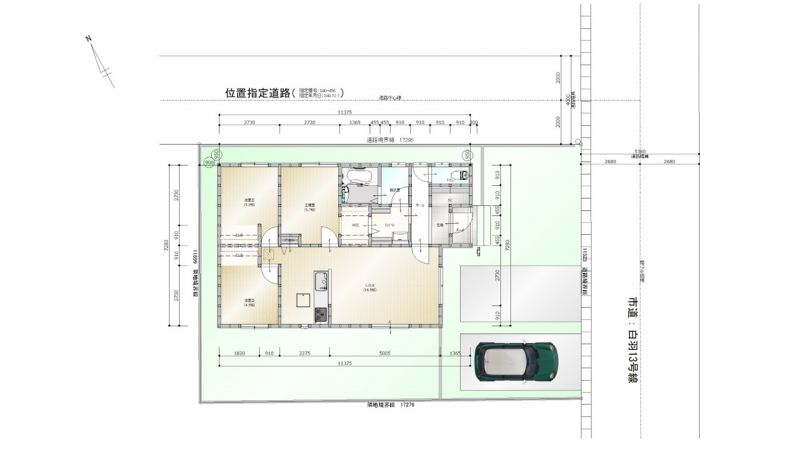
| 間取り | 3SLDK | 間取り内訳 | 3SLDK |
| 土地面積 | 200.7㎡ | 私道面積 | |
| 建物面積 | 76.18㎡ | 建物構造規模 | 木造 1階建 |
| 築年月(竣工月) | 2025年05月 | 駐車場 | 3台駐車スペースあり |
| 建ぺい率/容積率 | 60%/200% | 都市計画 | 市街化調整区域 |
| 接道状況 | 東5.36m 公道 接面11.5m 位置指定無 | ||
| 地目 | 宅地 | ||
| 土地権利 | 所有権 | 地勢 | 平坦 |
| 用途地域 | 無指定 | ||
| 現況 | 未完成 | 取引態様 | 売主 |
| 引渡し | 相談 |
|---|
| 設備 | 温水洗浄便座、追焚機能、浴室乾燥機、システムキッチン、カウンターキッチン、浄水器、ウォークインクローゼット、床下収納、洗髪洗面化粧台、電気、プロパンガス、上水道、下水道、側溝、複層ガラス、モニタ付インターホン、ディンプルキー、庭、駐車場3台分 | ||
|---|---|---|---|
| 特徴 | 日当り良好、24時間換気システム | ||
| 諸条件・相談 | |||
| 情報登録日 | 2025年4月4日 | 情報更新予定日 | 2025年12月2日 |
| 物件番号 | 235 | ||
| 所在地 | 浜松市中央区白羽町406-2 \中央区白羽町/浜松駅徒歩38分 平屋3LDK 白脇小・南部中 | ||
|---|---|---|---|
| 最寄駅 | JR東海道線 浜松駅 | 徒歩分数 | 38分 |
| 最寄バス停 | 大畑 | 徒歩分数 | 6分 |
| 小学校校区 | 白脇小学校 | 中学校校区 |
南部中学校
|
※学校区は住所から自動判定したものであり、保証できる情報ではございません。正確な学校区はお問い合わせ下さい。
「人型アイコン」を地図上にドラッグすることで『Google Street View』に切り替わります。
※地図上の「対象地」は実際の場所ではない場合がございます。詳しくはお問い合わせください。
